Francesco Borromini, kiến trúc sư
Có lẻ một trong những kiến trúc sư người ý mà mình thích nhất đó là Francesco Borromini. Chỉ nghe nói ở trường nhưng khi đến Ý Đại Lợi thấy những trụ của lâu đài Palazzo Spada được thiết kế năm 1653 cho Hồng y Bernardino Spada và ngày nay các kiến trúc sư hay gọi "prospettiva", đại diện cho một biểu tượng của Baroque illusionism. Không biết tiếng Việt gọi là gì. Chủ nghĩa ảo tưởng baroque? Được xem là người khởi đầu cho các tác phẩm được gọi “trompe l’oeil” sau này.
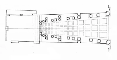
Ông ta thiết kế false perspective để cho người viếng có cảm tưởng hành lang này dài đến 35 thước nhưng thực tế chỉ có 8.82 mét. Cảm tưởng khi nhìn đứng trước hành lang được thiết kế cái sàn nhà và cái Trần nhà đều chú điểm vào một vanishing point: trần nhà được thiết kế chúi xuống và cái nền nhà bằng mosaic lại được nâng lên.
Phía cuối cùng thì có bức tượng nhỏ của một chiến binh được thêm vào thế kỷ 19 đó Hoàng tử Clemente Spada chỉ có 70 cm chiều cao nhưng người ta có cảm tưởng là một to lớn như thật.
Chúng ta thấy sàn nhà được đưa lên như con dốc và Trần nhà đi xuốngKiến trúc sư thiết kế mấy trụ chéo theo perspective thêm các gạch cũng nhỏ theo
Bác nào có dịp đến Ý Đại Lợi nếu có thời gian thích nghệ thuật thì ghé lại đây để xem vì là một điểm nhấn lịch sử về nghệ thuật đã giúp các nghệ nhân sau này tạo ra nhiều trường phái. Khi con người không còn bị gò bó với những giáo điều thì họ sẽ bơi lội trong vùng sáng tạo vô biên.
Ta thấy cận cảnh rất nhỏ bé nhưng đứng xa sẽ thấy rất lạHình này không thấy người đứng thì thấy tưởng to tác lắm
Mình mất công tìm các bản vẽ thiết kế lại hành lang Borromini này. Dù là vua chúa trả tiền nhưng người đời cứ gọi là hành lang Borromini. Cạnh chỗ này có Palazzo Farnese rất đẹp ghé luôn.
Sơn đen nhưng tâm hồn Sơn trong trắng, nhà Sơn nghèo dang nắng Sơn đen
Nguyễn Hoàng Sơn





Không có nhận xét nào:
Đăng nhận xét